本項目是城市更新背景下,城市酒店改造品質提升裝修設計項目,由我院環境藝術專業設計院牽頭設計。桂林漓江大瀑布飯店位于桂林市中心景區,緊鄰兩江四湖日月雙塔和市中心廣場、步行街,前望風光無限,后依熙擡商圈,主體建筑高度56米,極具景觀視野,能遠跳漓江及象鼻山景觀,是鬧市中品味桂林山水的絕佳位置。
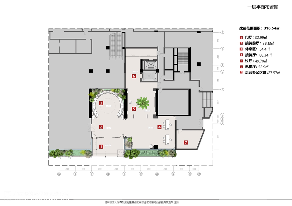
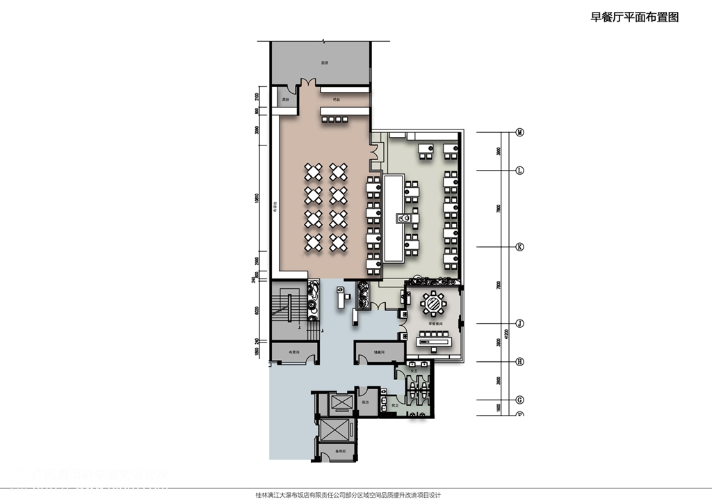
飯店占地面積為21.7畝,建筑面積70343平方米,建筑內部為“回”字型布局,擁有內圈房和外圈房等各類客房636間,有中餐廳、西餐廳及10個豪華包廂,餐廳席位總計1800個擁有一個可容納400人就餐500人開會的多功能廳、10間50㎡-375㎡不同規格的會議室及室內恒溫游泳池、VIP健身俱樂部等一套完善的服務設施。本次室內改造面積約6784.6㎡,包括:一層酒店入口(405.2㎡)、三層會議中心(2884.7㎡)、十二層標準層客房(1288㎡)、十五層套房層及早餐廳(1503.6㎡)、十六層套房層(703㎡)。
針對改造前飯店頂層的黃金視野點卻為閑置狀態,除建筑配套設備管線及消防水箱等設備之外還有部分空余場地,現狀陳舊雜亂現象?;陲埖甑恼w升級,頂層的使用功能將結合十五、十六層的戶外露臺及室內使用功能重新定義打造,將充分利用其良好的觀景視野,打造成酒店的網紅屋頂花園。本次設計把建筑與景觀作為自然的延伸,在保證周遭自然環境完整性的同時,考慮自然、景觀、建筑整體協調統一,前后環環相扣,將建筑價值最大化,適應新的需求,從而給來往的賓客帶去舒適的空間體驗和和諧的視覺感受。
本次改造設計兼顧酒店定位、區域風貌以及功能需求,合理選用建筑材料,把握建筑色調與周邊建筑及環境的協調,帶來新鮮感的同時符合當下審美需求。
改造方案尊重場地及原始建筑條件,適度改造,秉持順應自然、傳承文化、寫意當代、彰顯高新的設計理念,打造“山水人文詩,城市新客廳”,與自然山水交融,體現桂林特色的具有地標性的全新酒店。
未來,我院將綜合統籌,聚焦新時代城市建設高品質提升內涵,全力匹配城市發展戰略,緊扣時代脈搏,深度賦能城市更新。
項目平面圖


項目效果圖
部分完工的項目實景圖
▲接待前廳/實景
▲接待前廳/實景
▲一樓電梯廳/實景
▲休息區/實景
▲商務大床房/實景
▲商務大床房衛浴區/實景
▲商務大床房局部區域/實景